- HOME
 - 銀座1丁目 の賃貸オフィス・賃貸店舗
 
-  
  - 
                  
銀友ビル
大型ホテルに隣接し、賑わいのあるエリアです。「銀座一丁目」駅からは1分ほど、柳通りに面した立地です。1階にはコンビニが入居中なので、なにかと重宝しそうです。弊社での契約実績もありますので、お気軽にお問合せ下さい。
- 所在地
 - 東京都中央区銀座1-13-12
 
- 交通
 - 東京メトロ有楽町線 「銀座一丁目」駅 徒歩1分
 - 東京メトロ銀座線 「銀座」駅 徒歩4分
 - JR線 「有楽町」駅 徒歩6分
 
- 竣工
 - 1961/6
 
- 用途
 - 事務所、店舗、物販サービス
※ビルの空フロア全体での用途を表示 
 
-  
  - 
                  
明興ビル
銀座レンガ通り沿いの好立地。1階に調剤薬局があり、お客様へのご案内はわかりやすくご説明できると思います。
- 所在地
 - 東京都中央区銀座1-5-5
 
- 交通
 - 東京メトロ有楽町線 「銀座一丁目」駅 徒歩1分
 - JR線 「有楽町」駅 徒歩6分
 - 日比谷線 「銀座」駅 徒歩6分
 
- 竣工
 - 1964/2
 
- 用途
 - 事務所、店舗、物販サービス
※ビルの空フロア全体での用途を表示 
 
| フロア | 面積 | 賃料 | 共益費 | 保証金 | 用途 | 間取り | 内装仕様 | |
|---|---|---|---|---|---|---|---|---|
| 2 階 | 7.00坪 23.14㎡ | 178,500円 坪25,500円 | 21,000円 坪3,000円 | 1,428,000円 賃料の8ヶ月分 | 事務所 店舗 | 
                           
                                                   | 
                        
-  
  - 
                  
銀座西ビルヂング
銀座桜通り角地に建ち、東京駅から徒歩圏内でもある銀座の入り口に位置する事務所ビルです。春には通り一面の桜が見事です。1階にはコンビニのファミリーマートが入居しています。日・祝はエントランスが終日閉まるため、平日稼働の事務所にオススメ。弊社での契約実績もありますので、お気軽にお問合せください。
- 所在地
 - 東京都中央区銀座1-3-3
 
- 交通
 - 東京メトロ有楽町線 「銀座一丁目」駅 徒歩1分
 - JR線 「有楽町」駅 徒歩3分
 - 東京メトロ日比谷線 「銀座」駅 徒歩4分
 
- 竣工
 - 1969/6
 
- 用途
 - 事務所
※ビルの空フロア全体での用途を表示 
 
| フロア | 面積 | 賃料 | 共益費 | 保証金 | 用途 | 間取り | 内装仕様 | |
|---|---|---|---|---|---|---|---|---|
| 3 階 | 36.40坪 120.33㎡ | 800,800円 坪22,000円 | -円 | 8,008,000円 賃料の10ヶ月分 | 事務所 | 
                           
                                                   | 
                        
-  
  - 
                  
The ORB Premiere
外堀通りに面し、看板の効果も期待できるビル。2015年にリニューアルしたエントランスも綺麗です。募集中のフロアは、エステ・クリニックの業態でお探しの方にはぜひ内見して頂きたいです。
- 所在地
 - 東京都中央区銀座1-3-13
 
- 交通
 - JR山手線 「有楽町」駅 徒歩3分
 - 東京メトロ有楽町線 「銀座一丁目」駅 徒歩1分
 - 東京メトロ丸の内線 「銀座」駅 徒歩5分
 
- 竣工
 - 1991
 
- 用途
 - 事務所、店舗、物販サービス
※ビルの空フロア全体での用途を表示 
 
-  
  - 
                  
辰ビル
窓面が広く明るいオフィス物件!!銀座でありながら賃料を抑えることが可能です!!
- 所在地
 - 東京都中央区銀座1-18-2
 
- 交通
 - 都営浅草線 「宝町」駅 徒歩2分
 - 東京メトロ銀座線 「京橋」駅 徒歩4分
 - 東京メトロ銀座線 「銀座」駅 徒歩7分
 
- 竣工
 - 1987/5/30
 
- 用途
 - 事務所
※ビルの空フロア全体での用途を表示 
 
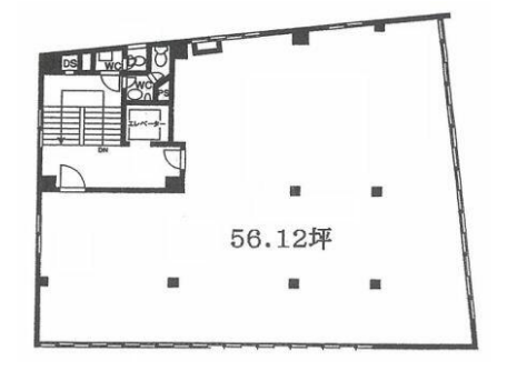
| フロア | 面積 | 賃料 | 共益費 | 保証金 | 用途 | 間取り | 内装仕様 | |
|---|---|---|---|---|---|---|---|---|
| 6 階 | 55.33坪 182.91㎡ | -円 | -円 | お問い合わせ | 事務所 | 
                           
                                                   | 
                        
                                                  
                                                  
                                                  
                                                  
                                                  
                                                  
                                                  
                                                  
                                                  
                                                  
 
                                                  
 
 
 



