SRビル
事務所 店舗
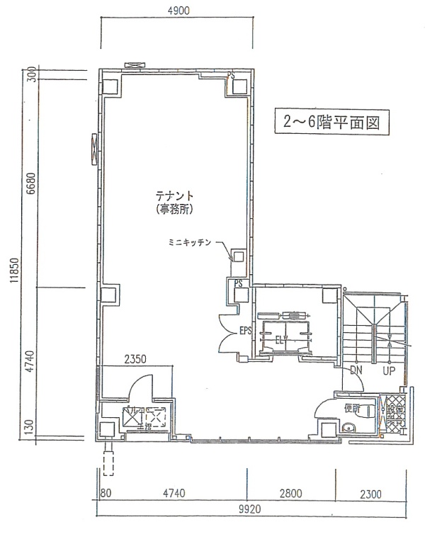
19.16坪 (63.33㎡) 4 階
- 賃料
- 344,880円 坪18,000円
- 共益費
- 76,640円 坪4,000円
- 空室状況をお問い合わせ
-
お気に入りの物件は
まとめて問い合わせができます。 お気に入りに追加
基本情報
- 用途
- 事務所・店舗
- 建物名
- SRビル
- 所在地
- 東京都中央区銀座8-12-3 地図
- 交通
-
東京メトロ銀座線 「銀座」駅 徒歩5分
-
東京メトロ日比谷線 「東銀座」駅 徒歩4分
-
JR線 「新橋」駅 徒歩5分
- 竣工
- 2009/03/01
- 構造
- 鉄骨造
- 規模
- 地下1階付 8階建て
- 入居時期
- 2025/11/19
- 契約期間
- 定期借家契約(2年)
- 保証金
- 3,448,800円 (賃料の10ヶ月分)
- 礼金
- 無し
- 更新料/再契約料
- 新賃料の1ヶ月分
- 償却
- 敷金の10%
- 媒体
- 媒介
設備
- エレベーター:1基
- 駐車場:-
- 天井高:-
- 床仕様:2WAYフロアダクト
- 光ファイバー:引込可
- 空調:個別空調
- トイレ:フロア専用
- 警備:機械警備
- 給湯:フロア専用
地図
備考
*袖看板、月額5,000円(税別)
*その他費用、光熱費、ごみ処理代、防火対象物点検費用




