- HOME
- 銀座 6丁目
- 東京銀座ビルディング
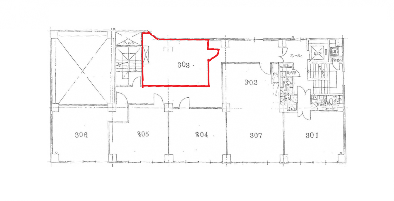
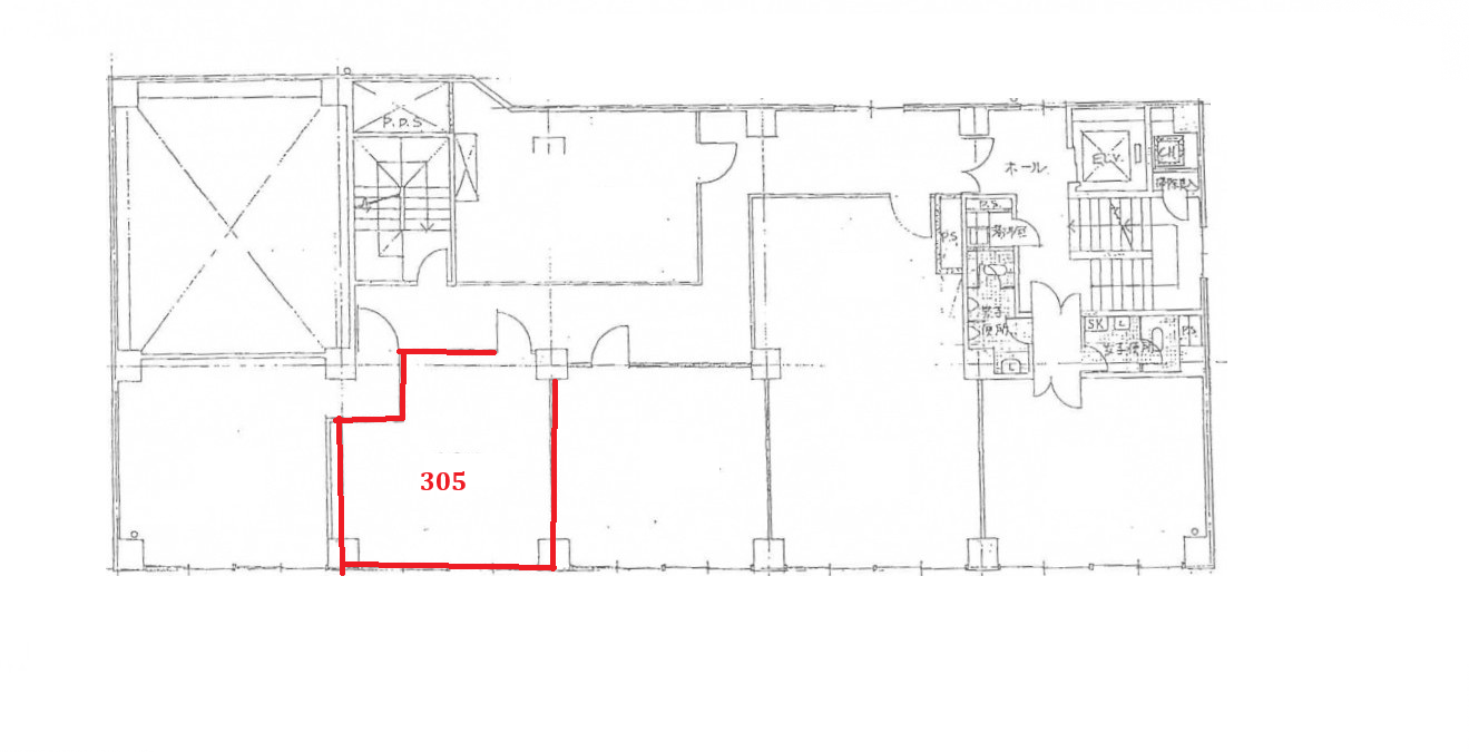
- 3 階
東京銀座ビルディング
事務所
ワンフロアに幾つか事務所が入っております。独立をお考えの方にお勧めの広さです。
基本情報
- 用途
- 事務所
- 建物名
- 東京銀座ビルディング
- 所在地
- 東京都中央区銀座6-12-2 地図
- 交通
-
東京メトロ日比谷線 「東銀座」駅 徒歩3分
-
東京メトロ銀座線 「銀座」駅 徒歩4分
- 竣工
- 1965/9
- 構造
- SRC造
- 規模
- 地下2階付 7階建て
- 入居時期
- 2026/2
- 契約期間
- 定期借家契約(2年)
- 保証金
- 1,670,000円 (賃料の10ヶ月分)
- 礼金
- -
- 更新料/再契約料
- 無し
- 償却
- 賃料の2ヶ月分
- 媒体
- 媒介
設備
- エレベーター:1基
- 駐車場:無し
- 天井高:-
- 床仕様:-
- 光ファイバー:MDFまで引込済み
- 空調:-
- トイレ:フロア共用
- 警備:-
- 給湯:フロア共用




