GINZA YANAGI PLAZA
事務所 店舗
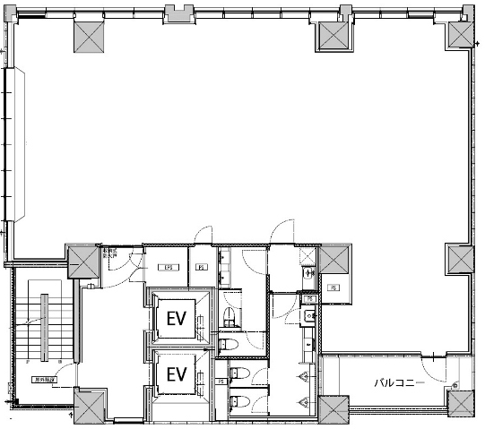
63.93坪 (211.33㎡) 6 階
- 賃料
- 2,301,480円 坪36,000円
- 共益費
- お問い合わせください
- 空室状況をお問い合わせ
-
お気に入りの物件は
まとめて問い合わせができます。 お気に入りに追加
基本情報
- 用途
- 事務所・店舗
- 建物名
- GINZA YANAGI PLAZA
- 所在地
- 東京都中央区銀座1-4-11 地図
- 交通
-
東京メトロ銀座線 「銀座一丁目」駅 徒歩2分
-
JR線 「有楽町」駅 徒歩5分
- 竣工
- 2025/8/31
- 構造
- RC造
- 規模
- 地下1階付 8階建て
- 入居時期
- 即日
- 契約期間
- 定期借家契約(5年)
- 保証金
- -円
- 礼金
- -
- 更新料/再契約料
- 新賃料の1ヶ月分
- 償却
- 無し
- 媒体
- 媒介
設備
- エレベーター:2基
- 駐車場:-
- 天井高:-
- 床仕様:OAフロア
- 光ファイバー:-
- 空調:個別空調
- トイレ:フロア専用 男女別
- 警備:-
- 給湯:-




