日本生命銀座ビル
事務所
基本情報
- 用途
- 事務所
- 建物名
- 日本生命銀座ビル
- 所在地
- 東京都中央区銀座2-6-8 地図
- 交通
-
東京メトロ銀座線 「銀座」駅 徒歩2分
-
東京メトロ丸ノ内線 「銀座」駅 徒歩3分
-
JR線 「有楽町」駅 徒歩5分
- 竣工
- 1983
- 構造
- 鉄骨造
- 規模
- 地下1階付 9階建て
- 入居時期
- 相談
- 契約期間
- 定期借家契約(期間相談)
- 保証金
- -円
- 礼金
- -
- 更新料/再契約料
- お問い合わせください
- 償却
- -
- 媒体
- 媒介
設備
- エレベーター:1基
- 駐車場:有り
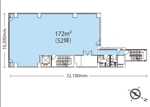
- 天井高:2450mm
- 床仕様:タイルカーペット
- 光ファイバー:MDFまで引込済み
- 空調:個別空調
- トイレ:フロア専用 男女別 洋式
- 警備:-
- 給湯:フロア専用



