銀座芦澤ビル
事務所
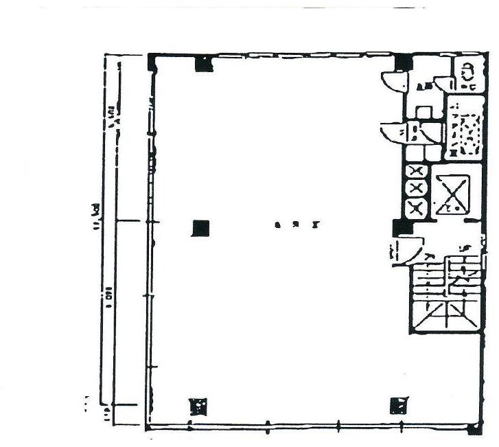
33.98坪 (112.33㎡) 2 階
- 賃料
- 747,560円 坪22,000円
- 共益費
- 101,940円 坪3,000円
- 空室状況をお問い合わせ
-
お気に入りの物件は
まとめて問い合わせができます。 お気に入りに追加
【銀座芦澤ビル】 角地による2面窓ガラスで明るいオフィス空間 トイレもリニューアル済みでキレイです。 スクエアな形状によりレイアウトし易くグッド! 銀座地域密着20年目の私達にお任せ下さい
基本情報
- 用途
- 事務所
- 建物名
- 銀座芦澤ビル
- 所在地
- 東京都中央区銀座3-13-11 地図
- 交通
-
都営浅草線 「東銀座」駅 徒歩1分
-
東京メトロ日比谷線 「東銀座」駅 徒歩3分
-
東京メトロ銀座線 「銀座」駅 徒歩5分
- 竣工
- 1977/3/13
- 構造
- SRC造
- 規模
- 地下1階付 6階建て
- 入居時期
- 相談
- 契約期間
- 定期借家契約(2年)
- 保証金
- 7,475,600円 (賃料の10ヶ月分)
- 礼金
- 賃料の1ヶ月分
- 更新料/再契約料
- 新賃料の1ヶ月分
- 償却
- 賃料の2ヶ月分
- 媒体
- 媒介
設備
- エレベーター:1基
- 駐車場:無し
- 天井高:2400mm
- 床仕様:タイルカーペット
- 光ファイバー:MDF迄引込済
- 空調:個別空調
- トイレ:フロア専用 男女共用 洋式
- 警備:なし
- 給湯:フロア専用
地図
備考
引渡し状態:事務所仕様
*保証会社加入:必須
・初回保証委託料:月額賃料・共益費等の1ヶ月分
・保証会社更新料:毎年更新、月額賃料・共益費等の1ヶ月の10%
*袖看板使用料:月額10,000円(税別)



