- HOME
- 銀座 1丁目
- ドゥーミラン銀座ビル
- 3 階
ドゥーミラン銀座ビル
事務所 店舗 物販サービス
基本情報
- 用途
- 事務所・店舗・物販サービス
- 建物名
- ドゥーミラン銀座ビル
- 所在地
- 東京都中央区銀座1-5-15 地図
- 交通
-
東京メトロ銀座線 「京橋」駅 徒歩4分
-
東京メトロ有楽町線 「銀座一丁目」駅 徒歩2分
-
JR線 「有楽町」駅 徒歩4分
- 竣工
- 2001/3
- 構造
- SRC造
- 規模
- 地下1階付 9階建て
- 入居時期
- 2026/5/1
- 契約期間
- 普通借家契約(2年)
- 保証金
- お問い合わせください
- 礼金
- -
- 更新料/再契約料
- 新賃料の1ヶ月分
- 償却
- 賃料の1ヶ月分
- 媒体
- 媒介
設備
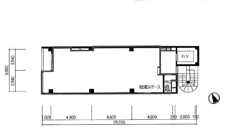
- エレベーター:1基(6人乗)
- 駐車場:無し
- 天井高:2450mm
- 床仕様:OA50mm
- 光ファイバー:MDFまで引込済み
- 空調:個別空調
- トイレ:フロア専用
- 警備:機械警備
- 給湯:フロア専用



