エイコー銀座ビル
店舗 軽飲食
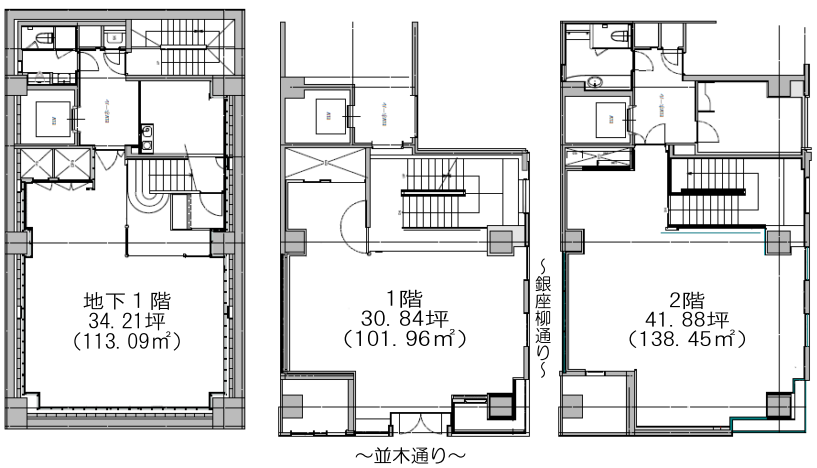
106.93坪 (353.50㎡) B1~2 階
- 賃料
- 16,039,500円 坪150,000円
- 共益費
- 534,650円 坪5,000円
- 空室状況をお問い合わせ
-
お気に入りの物件は
まとめて問い合わせができます。 お気に入りに追加
基本情報
- 用途
- 店舗・軽飲食
- 建物名
- エイコー銀座ビル
- 所在地
- 東京都中央区銀座2-3-2 地図
- 交通
-
JR線 「有楽町」駅 徒歩2分
-
東京メトロ有楽町線 「銀座一丁目」駅 徒歩1分
-
東京メトロ銀座線 「銀座」駅 徒歩3分
- 竣工
- 1993/12/01
- 構造
- SRC造
- 規模
- 地下2階付 7階建て
- 入居時期
- 2026/4/1以降
- 契約期間
- 定期借家契約(10年)
- 保証金
- 192,474,000円 (賃料の12ヶ月分)
- 礼金
- 相談
- 更新料/再契約料
- 新賃料の1ヶ月分
- 償却
- 賃料の1ヶ月分
- 媒体
- 媒介
設備
- エレベーター:1基
- 駐車場:無し
- 天井高:-
- 床仕様:-
- 光ファイバー:-
- 空調:-
- トイレ:-
- 警備:-
- 給湯:-
地図
備考
スケルトンor居抜き(宝飾店)
*現況外装石材の継続利用不可 外装改修はB工事
*B1階113.09㎡(34.21坪)、1階101.96㎡(30.84坪)、2階138.45㎡(41.88坪)
*テナント側所有の内階段有り
*飲食店不可
*現況外装石材の継続利用不可
※外装改修工事は貸主して業者に相談する事




