第一東成ビル
事務所
2015年5月外壁・エントランスリニューアル済み!建物は古いですがメンテナンスがしっかりされている建物です。銀座地域密着20年目の私達にお任せ下さい!
基本情報
- 用途
- 事務所
- 建物名
- 第一東成ビル
- 所在地
- 東京都中央区銀座8-10-7 地図
- 交通
-
JR線 「新橋」駅 徒歩5分
-
東京メトロ銀座線 「銀座」駅 徒歩7分
-
東京メトロ銀座線 「新橋」駅 徒歩5分
- 竣工
- 1961/8
- 構造
- SRC造
- 規模
- 地下2階付 9階建て
- 入居時期
- 即日
- 契約期間
- 定期借家契約(2年)
- 保証金
- 2,375,100円 (賃料の6ヶ月分)
- 礼金
- -
- 更新料/再契約料
- 新賃料の1ヶ月分
- 償却
- 賃料の1ヶ月分
- 媒体
- 媒介
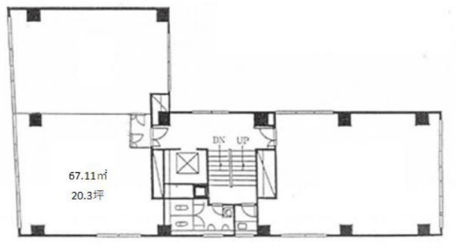
設備
- エレベーター:1基
- 駐車場:-
- 天井高:2800mm
- 床仕様:タイルカーペット
- 光ファイバー:MDF迄引込済み
- 空調:個別空調
- トイレ:フロア共用 男女別
- 警備:機械警備
- 給湯:フロア共用
地図
備考
貸主指定保証会社、火災保険加入
*貸主指定の保証会社加入必須
(アラームボックス株式会社:初回保証委託料 月額賃料の1ヶ月分・別途消費税)
*指定の火災保険加入必須
(株式会社アステクト)
*袖看板可(有料)
*機械警備有(セコム:1階入口にて施錠)
*ゴミ回収は月~土、1階の共用部に設置




