東貨ビル
事務所
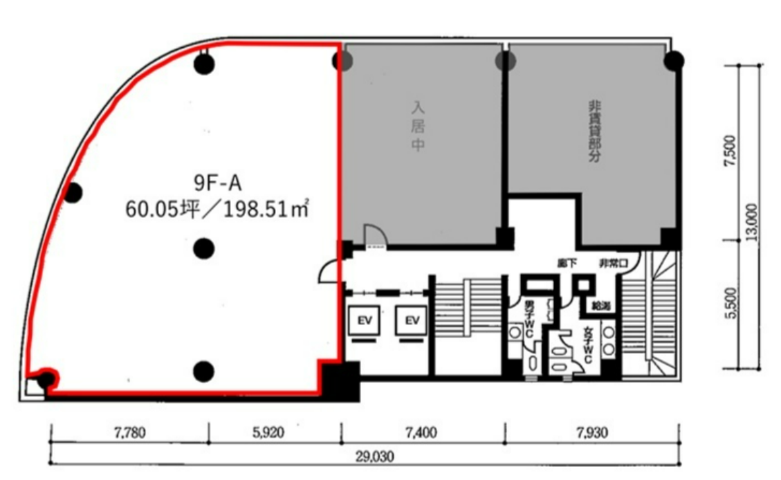
60.05坪 (198.51㎡) 9 階
- 賃料
- 1,291,075円 坪21,500円
- 共益費
- 210,175円 坪3,500円
- 空室状況をお問い合わせ
-
お気に入りの物件は
まとめて問い合わせができます。 お気に入りに追加
基本情報
- 用途
- 事務所
- 建物名
- 東貨ビル
- 所在地
- 東京都中央区銀座1-16-1 地図
- 交通
-
東京メトロ有楽町線 「銀座一丁目」駅 徒歩4分
-
東京メトロ銀座線 「京橋」駅 徒歩3分
-
JR線 「有楽町」駅 徒歩10分
- 竣工
- 1986/08/01
- 構造
- SRC造
- 規模
- 地下1階付 9階建て
- 入居時期
- 相談
- 契約期間
- 普通借家契約(2年)
- 保証金
- 7,746,450円
- 礼金
- 賃料の1ヶ月分
- 更新料/再契約料
- 無し
- 償却
- 解約時賃料の1ヶ月分
- 媒体
- 媒介
設備
- エレベーター:2基(11人乗)
- 駐車場:機械式有り
- 天井高:2500mm
- 床仕様:タイルカーペット
- 光ファイバー:MDF迄引込済み
- 空調:個別空調
- トイレ:フロア共用 男女別
- 警備:機械警備
- 給湯:フロア共用
地図
備考
*保証会社:株式会社Casa/初回保証料 月額支払総額の80%・以降月額支払総額の10%
*火災保険加入必須:貸主指定
*OA専用コンセント増設可
*床荷重300kg/㎡



