中島商事ビル
居抜き
事務所
- 居抜き
-
造作譲渡代金:-
造作仕様:事務所
基本情報
- 用途
- 事務所
- 建物名
- 中島商事ビル
- 所在地
- 東京都中央区銀座8-5-6 地図
- 交通
-
東京メトロ銀座線 「新橋」駅 徒歩5分
-
東京メトロ銀座線 「銀座」駅 徒歩6分
-
JR線 「新橋」駅 徒歩5分
- 竣工
- 1963/01/01
- 構造
- RC造
- 規模
- 地下1階付 9階建て
- 入居時期
- 相談
- 契約期間
- 定期借家契約(8年)
- 保証金
- 43,200,000円 (賃料の12ヶ月分)
- 礼金
- -
- 更新料/再契約料
- 無し
- 償却
- 賃料の1ヶ月分
- 媒体
- 媒介
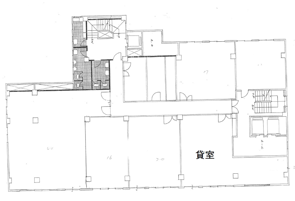
設備
- エレベーター:2基
- 駐車場:-
- 天井高:2450mm
- 床仕様:OAフロア
- 光ファイバー:MDF迄引込済み
- 空調:個別空調
- トイレ:フロア共用 男女別
- 警備:機械警備
- 給湯:フロア共用
地図
備考
居抜き相談可(事務所・専有部にキッチンあり)
*解約料:4年以上の場合、賃料の2ヶ月分(別途消費税)
4年未満の場合、賃料の3ヶ月分(別途消費税)
*別途清掃契約・ごみ処理費・町会費あり



