公開日 2025.11.21 更新日 2025.11.21
銀座アドレスの路面店舗 ✨画廊の居抜きで募集中✨

銀座アドレスの路面店舗 ✨画廊の居抜きで募集中✨
🌸ビルのご紹介
・銀座1丁目アドレスの路面物件
・築年数は経っていますが大規模修繕をおこなっています
・白基調の落ち着きのある外観
🌸貸室の特徴
・画廊の居抜きで木のぬくもりで温かみがある内装
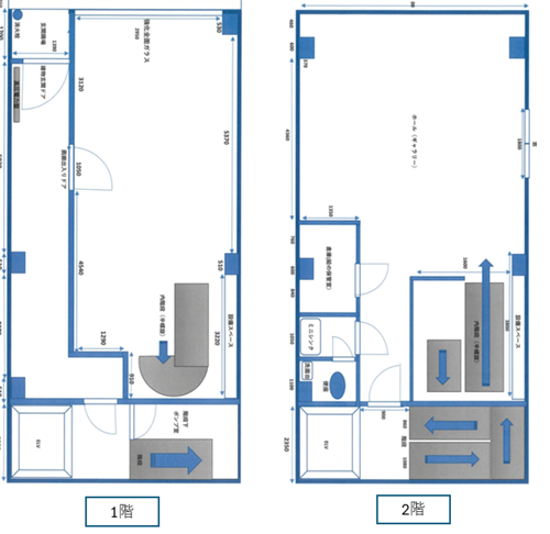
・貸室内に階段が設置されている、1+2階メゾネットタイプの区画。(共用部のエレベーターも利用可)
・ガラス面が大きく前面道路が抜けているので明るい印象
🌸諸条件―――――――――――――――――
住所: 東京都中央区銀座一丁目13番6号
広さ: 約24坪
賃料: 1,300,000円(税別) ※共益費込み
入居可能日:即日入居可
アクセス: 東京メトロ有楽町線 銀座一丁目駅 徒歩2分
東京メトロ銀座線 京橋駅 徒歩4分、
JR有楽町駅 徒歩8分
――――――――――――――――――――――
🌸図面と室内写真


諸条件の詳細、内見希望等のお問い合わせいただく際は下記TEL📞に
小杉(こすぎ)の記事を見たとお伝え頂くとスムーズにご案内ができます!
03-3538-1791もしくは080-4409-8059
少しでも気になった方、お気軽にお問い合わせください 📩







